Acerage Range

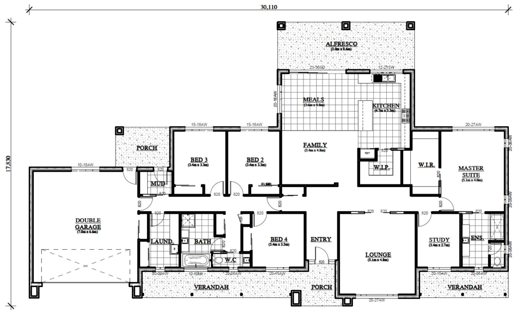
Birdsville 260

Home dimensions

Share with a friend

Floorplan

Let's build your dream home together!

For more information on this home email us or call (03) 5831 5226 to speak with a consultant.

Scroll to Top

Thinking of building?
Need advice?

Give us a call for a no-obligation, free on-site visit.