Facebook
Ph:
(03) 5831 5226
HOME
DISPLAY HOME
HOME DESIGNS
Hot New Designs
Arie Design Range
Acreage Range
Contemporary Range
Entertainer Range
Essential Range
Goulburn Range
Macquarie Range
Murray Range
Vista Range
Waranga Range
HOUSE AND LAND
Featured House & Land Packages
GALLERY
TESTIMONIALS
CONTACT US
About Us
Enquire Now
Menu
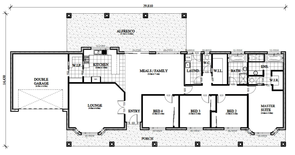
Matilda 220
HOME DIMENSIONS
House Area
337.07m² (36.28sq.)
House Length
29.81m
House Width
14.43m
Min Block Width
–
ENQUIRE NOW
4
2
2
Click to enlarge plan
Scroll to top