Strzelecki 260
HOME DIMENSIONS
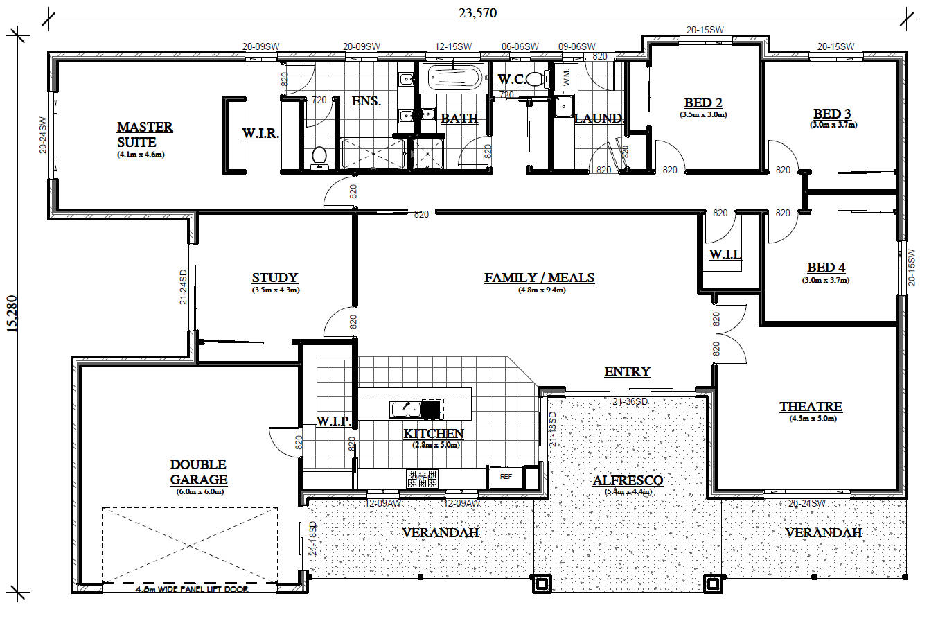
| House Area | 327.75m² (35.28sq.) |
| House Length | 23.57m |
| House Width | 15.28m |
| Min Block Width | – |
Click to enlarge plan
| House Area | 327.75m² (35.28sq.) |
| House Length | 23.57m |
| House Width | 15.28m |
| Min Block Width | – |
Click to enlarge plan